
Nowoczesny dom z ogródkiem 110 m2
ul. Kotoniarska
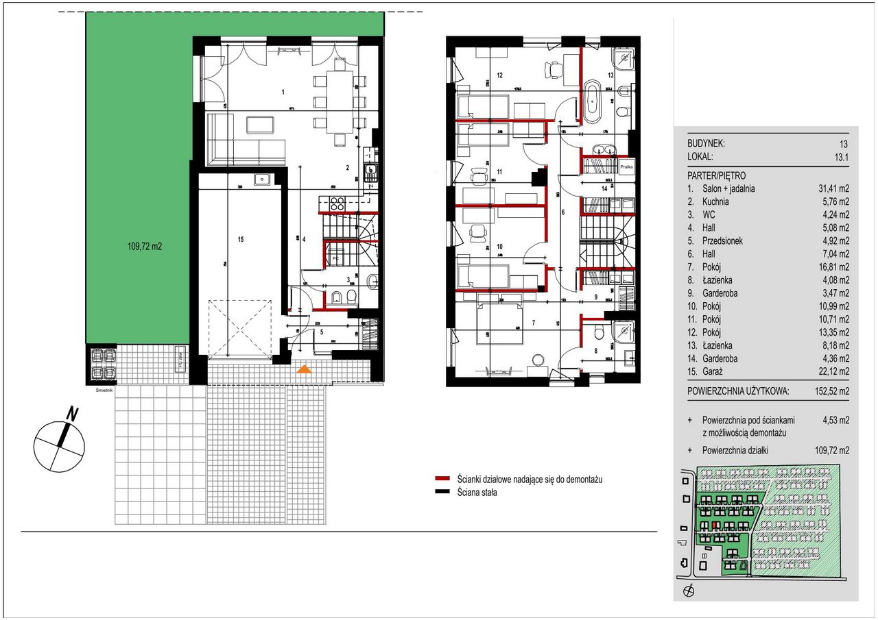
1 359 169 zł / 152,51 m²
Na sprzedaż przestronny, nowoczesny dom o powierzchni 153 m² z prywatnym ogródkiem 110 m2, zlokalizowany w kameralnej zabudowie w południowej części Łodzi.
To idealna propozycja dla osób poszukujących komfortu domu jednorodzinnego bez konieczności rezygnacji z miejskiej infrastruktury.
Szczegóły ogłoszenia
Układ pomieszczeń:
Dom składa się z dwóch kondygnacji, zapewniających wygodny podział na strefę dzienną i prywatną.
Parter:
- przestronny salon z miejscem na jadalnię
- kuchnia (możliwość otwarcia lub zamknięcia)
- łazienka
- dodatkowy pokój (gabinet / sypialnia)
- garaż w bryle budynku
Piętro:
- cztery ustawne sypialnie
- dwie łazienki
- komfortowa przestrzeń dla całej rodziny
Najważniejsze atuty:
- powierzchnia 153 m² – funkcjonalny układ dla dużej rodziny
- 5 pokoi i 3 łazienki
- garaż w bryle budynku
- ogrzewanie pompą ciepła
- media miejskie, w tym kanalizacja
- duże przeszklenia zapewniające naturalne światło
- prywatna przestrzeń zewnętrzna
- nowoczesna architektura
- kameralna zabudowa
Osiedle:
- teren zamknięty, zapewniający bezpieczeństwo i prywatność
- 4 niezależne wjazdy na osiedle, sterowane pilotem
- planowany plac zabaw dla mieszkańców
- uporządkowana, spójna zabudowa
Lokalizacja:
- Łódź Górna – spokojna, zielona część miasta
- w pobliżu tereny rekreacyjne i zbiorniki wodne
- szybki dojazd do centrum
- dostęp do komunikacji miejskiej
- w okolicy sklepy, szkoły i przedszkola
Dodatkowe informacje:
- standard deweloperski
- planowany termin oddania: czerwiec 2026 r.
- idealna alternatywa dla domu wolnostojącego
Zapraszam do kontaktu!


.jpg)


